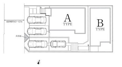
尾張旭市南新町全2棟《仲介手数料無料 本地原小学校 旭中学校》
こちらの物件は最寄りのスーパー「トップワン食品館本地店」が463m以内にあります。地盤調査済みなので、防災面での安心感が増します。新築戸建ての物件は、室内のレイアウトも自分好みに変更可能です。つ
物件情報
周辺施設
コメント【外観】ご成約キャンペーン対象物件です♪詳細は弊社ホームページもしくはスタッフまでお気軽にお問合せ下さいませ♪ お役に立てる自信があります♪
尾張旭市南新町全2棟《仲介手数料無料 本地原小学校 旭中学校》 の物件概要
【中古一戸建】| 所在地 | 愛知県尾張旭市南新町白山 | ||
|---|---|---|---|
| 交通 | |||
| 価格 | 2,680万円~3,280万円 | 築年月(築年数) | 2024年 10月 ( 築1年 ) |
| 建物面積/坪数 | 73.74㎡~88.67㎡/22.3坪~26.82坪 | 土地面積/坪数 | 100.27㎡~114.79㎡/30.33坪~34.72坪 |
| 種別/構造 | 中古一戸建 / 木造 | 地目 | - |
| 備考 | 便利なスーパー「トップワン食品館本地店」まで463mです。多くの方から高いニーズのある、内装もピカピカの新築戸建ての物件です。地震にも対応してくれる強い地盤の物件は安心感があります。 | ||
| 取扱会社 |
|
||
※地図上に表示される物件の位置は付近住所に所在することを表すものであり、実際の物件所在地とは異なる場合がございます。
尾張旭市南新町全2棟《仲介手数料無料 本地原小学校 旭中学校》の販売物件情報

















